電動金庫門設計方案
根據中華人民共和國公共安全行業標準《防盜安全門通用技術條件》(GB17565-2007)和GB/37481-2019《金庫門通用技術條件》等有關技術標準的要求,電動平移安全門具體技術指標和參數如下:
1、電動平移安全門的結構及用材:
第一層:1.2mm不銹鋼+8mm厚鋼板
第二層:特殊防護部位加裝30mm厚防切割合金防護鋼板;
第三層:內含防火,防腐、防電腐、耐高溫、耐高熱功能的合成材料;第四層:4mm厚的不銹鋼板。

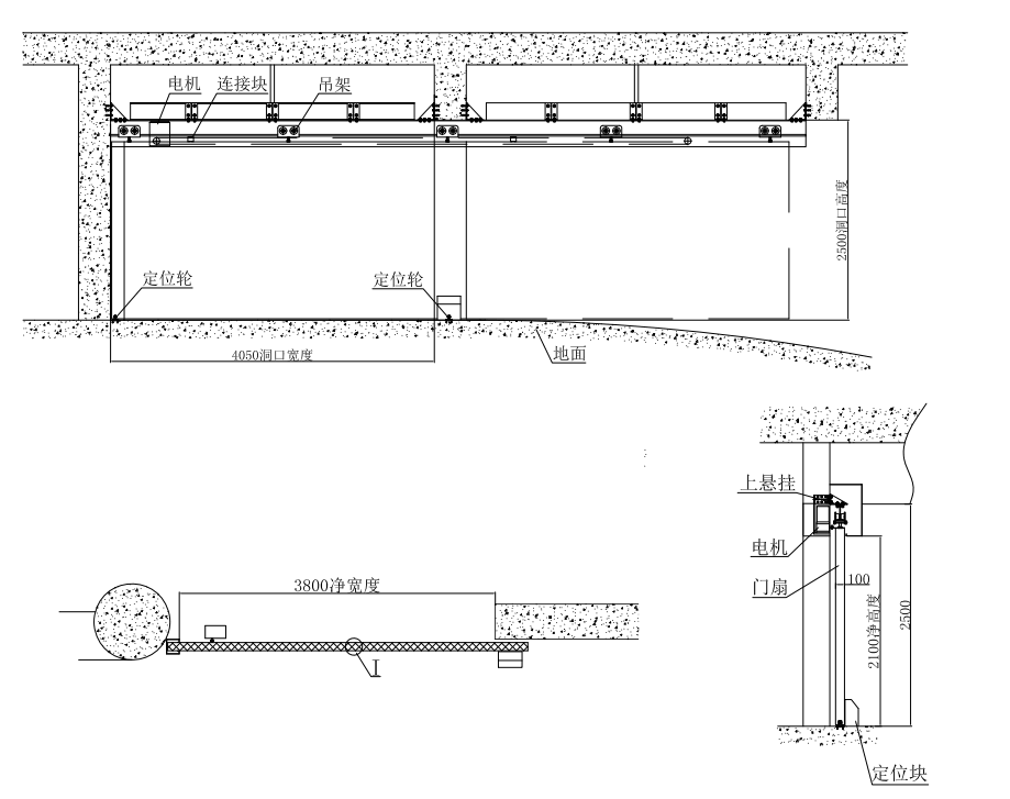
2、門的基本結構為平移門扇、上導軌、下導輪、開門機、驅動機構、中央控制系統、指紋鎖等執行機構,門扇在上、下導軌中滑動3、尺寸:(寬×高×厚)4050mm×2500mm
4、導軌及門扇尺寸測量:
上導軌和墻體連接,上導軌與門扇結合處沒有可以直接窺視到門內的縫隙。上導軌外裝飾板的表面平整,下導軌安裝后與成型地面保持水平,其水平度誤差≤2m,下導軌安裝于地面時,軌道下預置大于軌道的鋼筋混泥土結構梁作為承重基礎。門扇的表面平整度≤3mm。除不銹鋼材料以外,其他所有的鋼材部件表面均應進行電鍍、噴漆或其他防腐處理。基本結構為上導軌、下導軌、門扇、驅動裝置和電氣控制器。
5、電動平移安全門具備防暴、防砸、防撬、防火焰切割、防鉆、防噴鋸、防腐蝕、防撞擊、防火等功能。
(1)軌道式電動平移安全門(C級)可以抗暴力破壞的能力達120min以上。
(2)軌道式電動平移安全門內特殊合金防護鋼板,其能抵抗專業人員破壞性工作時間達120min。
(3)防火性、耐火隔熱性
軌道式電動平移安全門(C級)的主體材料防火能力強,防火復合填充材料具有6h以上的耐火功能。
6、開門控制機構:
電動平移安全門配置1套電動開門機及1套減速緩沖機構,以降低門扇的運動速度。減速緩沖裝置由減速機、磁感應器與中央控制
機構組
成,通過電動開門機及減速緩沖裝置來實現庫門的鎖閉與開啟。電機的轉速≥2800rpm,開門的速度≥16m/min,噪音≤6OdB,電機有過熱和過載保護。
8、應急手動開啟:
門體背面安裝有大號隱形拉手,在電機發生故障或者停電時,人員在庫內可以手動推開門扇。












客服QQ:38219871